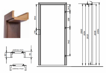
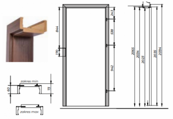
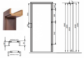
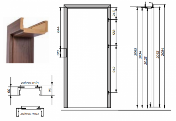
Ościeżnice do drzwi występują w dwóch wersjach: stałej i regulowanej. Oba rodzaje futryn dostępne są u nas od ręki. Bez problemu dopasujesz je do drzwi oraz wystroju domu. Ościeżnice stałe produkowane są w standardowych wymiarach (6-10cm), a regulowane umożliwiają dopasowanie do grubości ścian. Oferujemy wykonanie dokładnych pomiarów, dzięki którym łatwiej wybrać odpowiednią futrynę. Zachęcamy do zakupu ościeżnic regulowanych, ponieważ są łatwiejsze w montażu oraz nie wymagają wykorzystania listew do osłonięcia łączeń z murem. Zostały bowiem wyposażone w opaski maskujące, które obejmują ścianę z obu stron, co sprawia, że wykończenie otworu drzwiowego jest bardziej estetyczne. Oferujemy fachową pomoc w montażu futryny i skrzydeł drzwiowych Dbamy o prawidłowe przygotowanie ścian oraz precyzyjne wykończenie ościeży. Jeśli nie wiesz jak samodzielnie osadzić zakupione u nas drzwi wewnętrzne lub zewnętrzne, zamów stolarkę wraz z usługę montażu.
Pamiętaj, że futryna do drzwi to dodatkowy element, który nie zawsze jest sprzedawany w komplecie ze skrzydłami drzwiowymi. Czasem należy kupić ją oddzielnie. Wybierając kolor futryny do drzwi, należy kierować się barwą skrzydła oraz stylem pomieszczenia. Najważniejszą zasadą jest to, aby pasował do podłóg i ścian. Nie oznacza to, że barwa wszystkich elementów musi być identyczna – wnętrze musi być harmonijne, a do tego wystarczy dobrać podobną tonację różnych odcieni tego samego koloru. W naszej ofercie znajdują się zarówno ościeżnice malowane, jak i w stanie surowym. Zakup futryny pozbawionej warstwy farby lub lakieru pozwala na jej samodzielne wykończenie. Do malowania ościeżnicy należy użyć preparatów dostosowanych do tworzywa, z jakiego jest ona wykonana. Farby wodorozcieńczalne (akrylowe) sprawdzają się w przypadku wewnętrznych futryn drewnianych. Z kolei ościeżnice zewnętrzne muszą zostać zabezpieczone przed szkodliwym oddziaływaniem czynników atmosferycznych. Skuteczną ochronę zapewnia im warstwa farb chlorokauczukowych. Jeśli planujesz pomalować futrynę metalową, pamiętaj, aby zabezpieczyć ją przed korozją zanim nałożysz powłokę malarską.
Ościeżnice do drzwi ukrytych w ścianie to innowacyjne produkty, które są całkowicie niewidoczne w pomieszczeniu. Jeszcze do niedawna należały do najbardziej kosztownych i skomplikowanych technologicznie wyrobów stolarskich, lecz obecnie każdy może pozwolić sobie na to rozwiązanie aranżacyjne. W drzwiach z ukrytą futryną widoczne jest tylko skrzydło, które tworzy ze ścianą jednolitą powierzchnię. Dzięki temu idealnie sprawdzają się one w małych pomieszczeniach, ponieważ optycznie powiększają przestrzeń. Jeśli skrzydło i ściany zostaną wykończone w ten sam sposób, wejście jest widoczne tylko za sprawą obecności klamki i cienkiej szczeliny wokół. Drzwi dyskretne można pomalować na dowolny kolor lub pokryć tapetą czy innym materiałem do krycia ścian, np. lakierowanym szkłem, fornirem, panelami, mikrocementem.
Aby uzyskać wycenę online, lub zamówić bezpłatny pomiar prosimy o skontaktowanie się z nami za pośrednictwem poniższego formularza kontaktowego lub bezpośrednio na maila biuro@gamasalon.pl